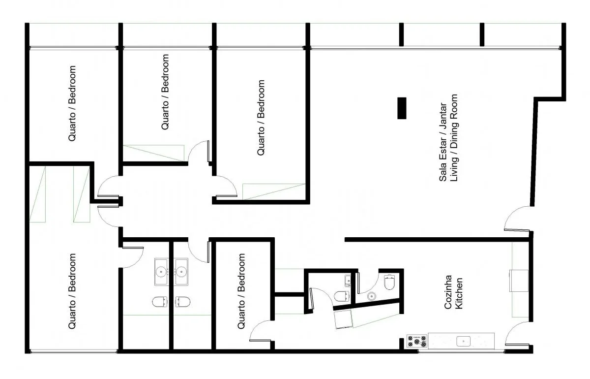
180m² útil
1 vaga
3 banheiros
4 quartos
1 suíte
64 anos
SQS 206, Bloco E – Asa Sul.
180 m2, 4 Quartos, 3 banheiros, 1 vaga
“Um convite à tranquilidade para fazer dias bonitos”.
Imagine morar num Bloco projetado por Niemeyer. Este apartamento é um refúgio histórico para quem valoriza espaço e bem-estar. Seus ambientes amplos e bem distribuídos proporcionam uma sensação de liberdade e harmonia, enquanto a iluminação natural realça a serenidade dos espaços, criando uma atmosfera acolhedora.
Brasília is the synthesis of the encounter between JK and Niemeyer—a visionary and a master of architecture. Now, imagine living in a Block designed by Niemeyer. This apartment is a historic retreat for those who value space and well-being. Its spacious and well-distributed interiors create a sense of freedom and harmony, while natural light enhances the serenity of the spaces, shaping a welcoming atmosphere.
Home staging: @olggy
Fotos: @mauricioaraujophoto
Áreas Comuns:
Acesso deficientes, Portaria 24 horas, Elevador, Câmeras de segurança, Porteiro eletrônico
Área Privativa:
Ar condicionado, Suíte, Área de serviço, Closet
Não aceita pets.
Fale com um corretor
*Ao enviar, você está aceitando os Termos e condições de uso e as Políticas de privacidade









